行田市埼玉T様邸太陽光発電システム設置工事
2014年12月16日 太陽光発電行田エコタウン太陽光発電システム設置協力事業主のおうちサポートフカイです。
皆様、こんにちは!
今日の行田の最高気温は6℃だそうです!寒すぎます。。
午前中には初雪も降りました。
どうぞ、風邪などひかれないようにしてくださいね。
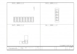
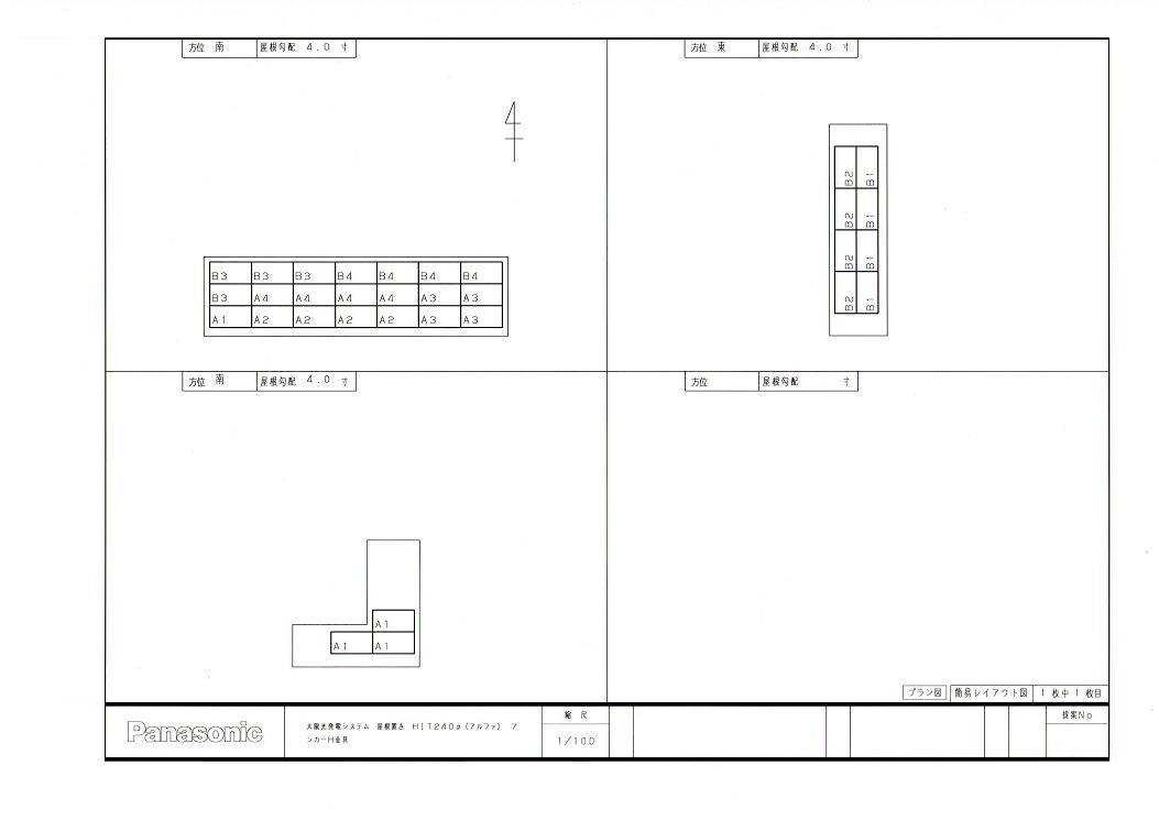
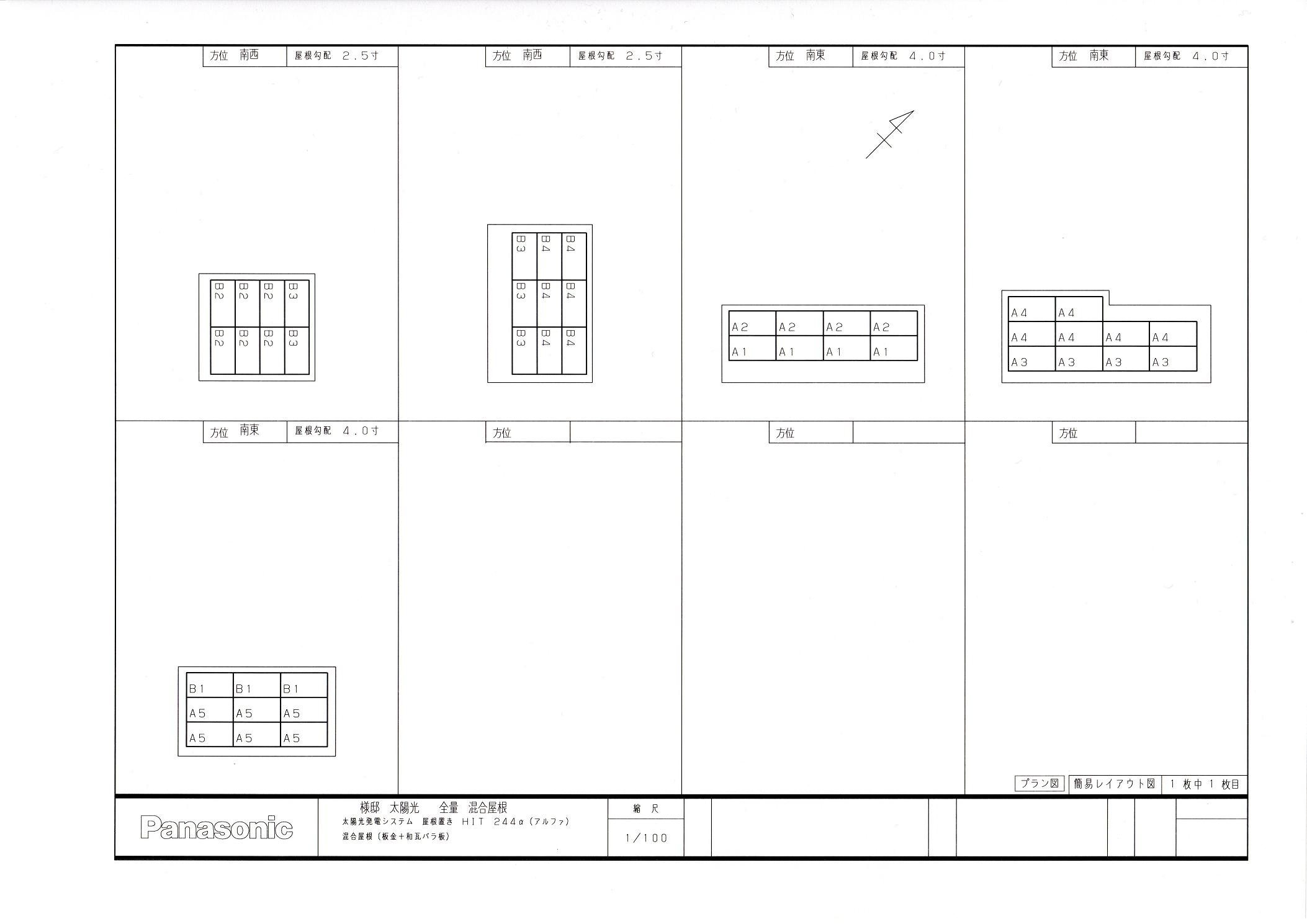
行田市埼玉にてパナソニックHIT10.73kw設置工事を行いましたのでご紹介します。
同じ敷地内の母屋に35枚、離れに9枚の合計44枚設置しました。
平屋の2軒続きの母屋の屋根です。
瓦の傷みもあったことから、事前に屋根の補修をしました。
設置は瓦屋根工法のアンカー方式という施工方法です。
アンカーボルトの位置を決め、マーキングし慎重に穴あけをし、アンカーを付ける位置の真下には補強板を取り付け、しっかりと垂木にビス止めし穴あけをした瓦を戻し、コーキングで防水処理をします。
その上にラックフレームを水平垂直を図りながら取り付け、
ケーブル、アースを配線し太陽電池モジュールを取付ます。
続きまして母屋の南の屋根です。
こちらの屋根も傷みがあり雨漏りの不安があったことから事前に ガリバリウム屋根補修を行いました。
こちらは板金金具方式で設置します。
屋根裏から垂木位置を測定し、垂直の墨出しをし、板金金具のネジ穴を墨出し線に合わせ、下穴を開け木ネジで取付後、しっかりコーキングします。
板金金具を取り付けたら、ラックフレームを取り付けて
その後に、太陽光電池モジュールを取付ます。
こちらも同様にアンカー方式で設置しました。
同時進行で、野外パワコン、電気工事を行います。
後日、東電より電力メーターを設置後売電スタートです!
T様の年間予測シミュレーションです。
年間発電量 12,489kwh/年
年間発電金額 431,620円/年
となっております。
毎月平均35,968円の売電収入が予測できます!!
毎日、晩酌でビールを飲みたいお父さんへ。
おかずを一品増やしたいお母さんへ。
かわいい孫におこづかいをあげたいおじいちゃん、おばあちゃんへ。
お留守番中も快適に過ごしたいワンちゃんへ。
くらしにワクワク♪が増える、太陽光のある生活
心よりオススメいたします!!
本日もお読みいただきありがとうございます






























































































